Homlovely.com -- Small house designs are in high demand by simple families. The flexible design can be applied to any size of house. This time Homlovely.com has prepared this TOP 10 Pic Small Concrete House Design with Floor Plan for your inspiration. Let's check this out!
1. 36 sqm House Design with Roofdeck
![]() |
| House Facade |
This is a small house design with an additional roofdeck as a relaxing space for your family. The facade has a simple look, with a side-facing entrance door for privacy.
![]() |
| Floor Plan |
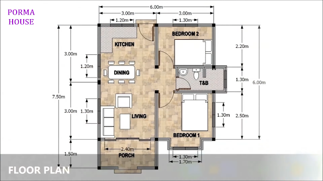
This house has a size of 36sqm (6x6 meters), and this is its simple floor plan. Although compact, this house has enough facilities for a small family with 2 children. It features a terrace, living room, dining room, kitchen, 2 bedrooms and 1 bathroom.
2. 68 sqm House Design With Attic
![]() |
| Front Facade |
This house has a unique and elegant look with the combination gable roof model it uses. The front has a terrace and balcony that are aligned, becoming a highlight that makes the facade eye-catching.
![]() |
| Floor Plan |
This is a simple floor plan view. This small house with a size of 68sqm has an additional attic room, suitable for those of you who want additional space on a narrow land. With this, the facilities are more complete, and make the owner feel more comfortable.
3. Most Favorite Bungalow House Design 65 sqm
![]() |
| Front Facade |
You could say this house design is the most favorite and popular. Indeed, it looks simple but still seems elegant and charming. The combination of a sloping roof makes the house look more attractive, with a small terrace that is comfortable to relax.
![]() |
| Floor plan |
This is a simple floor plan. This 65 sqm bungalow house has maximum organization, with perfect facilities. Besides the terrace, there is a living room, dining room, kitchen, with 3 bedrooms and 1 bathroom.
4. Elegant House Design with 45 sqm Pyramid Roof
![]() |
| Front Facade |
Charming and elegant, this bungalow house can be an option for your future home. The facade is clean and neat, with bright colors that make a bigger impression. At the front there is a terrace with 2 small pillars, and elegant arches.
![]() |
| Floor plan |
This is a simple floor plan view. Although only 45 sqm in size, this house is equipped with 2 bedrooms and 1 bathroom. The design is also neat and maximized with an open space concept that creates free space for movement.
5. 42 Sqm Small House Suitable for Your Family
![]() |
| Front Facade |
Having a modern bungalow style, this house seems warm, homey, and inviting. The building lines are simple and clean, looking solid with a slightly elevated design. The small terrace with railing is in harmony with the combined pyramid roof model used.
![]() |
| Floor Plan |
This is a simple floor plan. The size of this house is very compact, only 42 sqm. A cozy open space concept for the living room, dining room and kitchen. Equipped with 2 bedrooms and 1 bathroom.
Thank you for taking the time to read this TOP 10 Pic Small Concrete House Design with Floor Plan. Hope you find it useful. If you like this, don't forget to share and leave your thumbs up to keep support us in Balcony Garden Facebook Page. Stay tuned for more interesting articles from Homlovely.com! Have a Good day.
Author : Rieka
Editor : Munawaroh
Source : PORMA HOUSE
Homlovely.com is a home decor inspiration resource showcasing architecture, landscaping, furniture design, interior styles, and DIY home improvement methods.
Visit Homlovely.com everyday... Browse 1 million interior design photos, garden, plant, house plan, home decor, decorating ideas.
.jpg)









