![]() |
| Tiny Simple House Design Idea With 2Bedrooms 5X6 meters |
Homlovely.com -- The following 5x6 meter house design will attract you. With a simple minimalist concept, this house is able to maximize the land well to provide comfort to your small family. There are up to 2 bedrooms with a practical and impressive design. Let's check out the details below!
Front View
![]() |
| Front View |
This small house offers a practical and functional design. With simple building lines in a modern minimalist style. The terrace looks secure with the addition of a canopy and two sturdy pillars supporting it, decorated with elegant wall lights.
Rear View
![]() |
| Rear View |
This small house is also equipped with several large windows. Secure design with additional trellis. At the back of the house there is also an additional exit door. A simple roof with a sloping model is perfect for this small house. The design is wide with extra built-in lights to help illuminate the outside of the house.
Open Space
![]() |
| Open Space |
Because it is very small, you can use the open space concept to make the room seem wider and more spacious. The living room, dining room, and kitchen are combined without any dividers.
The living room is furnished with a slim L-shaped sofa that can be moved around easily. The dining area uses a minimalist round table and chair set. Then in the small kitchen, it is equipped with an in-line kitchen set complete with top-bottom cabinets, with plenty of storage space.
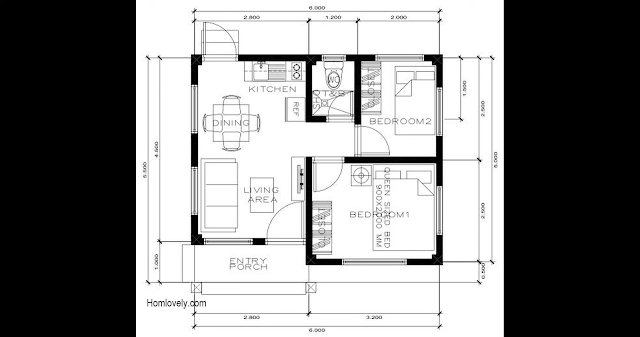
Floor Plan
![]() |
| Floor Plan |
This is a simple floor plan of this small house. In addition to the previous main room, the house is also equipped with 2 bedrooms and 1 bathroom. A practical and neat design, perfect for inspiration.
Like this article? Don't forget to share and leave your thumbs up to keep support us. Stay tuned for more interesting articles from us!
Author : Rieka
Editor : Munawaroh
Source : Youtube iHDesign
Homlovely.com is a home decor inspiration resource showcasing architecture, landscaping, furniture design, interior styles, and DIY home improvement methods.
Visit Homlovely.com everyday... Browse 1 million interior design photos, garden, plant, house plan, home decor, decorating ideas.




