![]() |
| 2-Bedrooms Small House Design in 6 x 7M |
Homlovely.com -- For those of you who are looking for a simple and beautiful house design on a small area with a pool, maybe the design below can be your reference in building your dream home. So, check out 2-Bedrooms Small House Design in 6 x 7M.
Facade
This simple and neat facade design while looking elegant has a variety of charming exterior details that are beautiful and good color selection. This house is suitable for those of you who have a car, because there is a carport area. Making a small garden in the front area of the house is the right choice to utilize the land.
Living area
Entering the house there is a living area that has a simple and beautiful appearance seen from a variety of beautiful interior designs. Designed in a modern way, this 6 x 7 m house makes the spacious living area more comfortable and attractive. Choosing a sectional couch like this is a good idea to adjust the shape of the room. In addition, there are several windows that make this area look awesome.
Dining area
Not far from the living area, there is a dining area in this house designed luxuriously and beautifully with the dominance of white color. In addition, there is a dining bar that is designed simply as well as a room divider. In the dining area, using a rectangular dining table with marble material combined with non-arm chairs for 4 people.
Bedroom
After a long day outdoors, your body deserves a good rest. This room provides comfort as well as beauty with a simple design with a variety of beautiful interior designs dominated by white. There is a window that makes the room feel fresher and brighter.
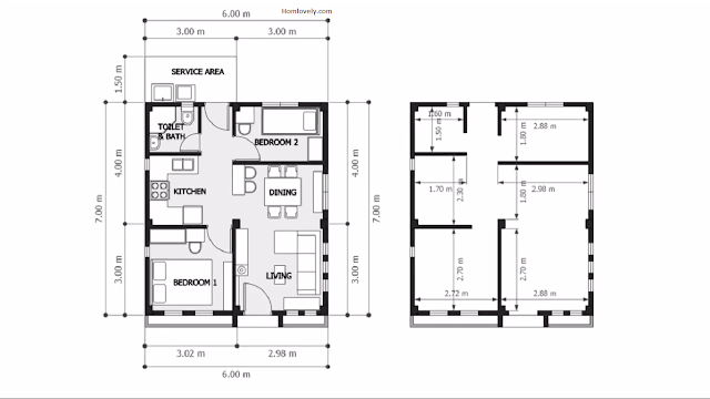
Floor plan
Lets take a look at the detail of this house design, it has :
- Porch
- Living area
- Kitchen and dining area
- 2 Bedrooms
- Batrhooms
- Laundry area
- Carport area
That's 2-Bedrooms Small House Design in 6 x 7M. Perhaps this article inspire you to build your own house.
Author : Devi
Editor : Munawaroh
Source : D' House of Arts
Homlovely.com is a home decor inspiration resource showcasing architecture, landscaping, furniture design, interior styles, and DIY home improvement methods.
Visit Homlovely.com everyday... Browse 1 million interior design photos, garden, plant, house plan, home decor, decorating ideas.

.png)
.png)
.png)
.png)
.png)